Woonoppervlakte
Circa 72 m²
Inhoud
Circa 228 m³
Bouwjaar
Gebouwd in 1966
Aantal kamers
4 kamers (3 slaapkamers)

Langswater 586

1069 EE, Amsterdam (Noord-Holland)

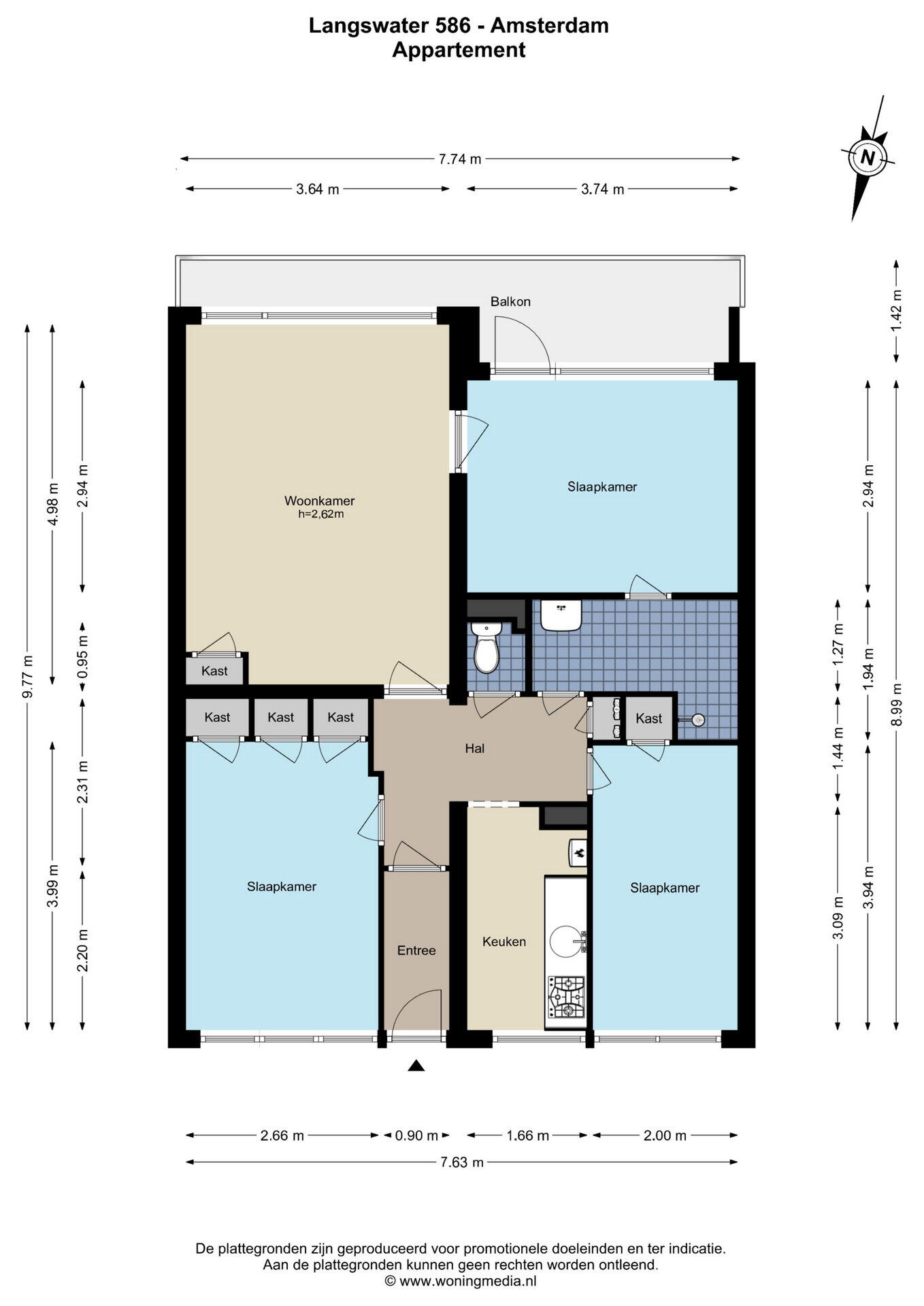
Ontdek dit ruime en 4-kamer appartement op de zesde verdieping van een complex met verzorgde entree, trap en twee liften aan Langswater. Met een comfortabel woonoppervlak van circa 72 m² en een heerlijk zonnig balkon op het zuiden biedt deze woning een oase van rust en ruimte. De woning dient gemoderniseerd te worden waardoor deze geheel naar eigen smaak verbouwd kan worden. Daarnaast beschikt het over een royale bergruimte van circa 8 m² in de onderbouw van het complex.

Indeling
Bij binnenkomst via de entree betreed je een centrale hal die toegang biedt tot alle vertrekken in de woning. De lichte en ruime woonkamer bevindt zich aan de achterzijde met uitzicht op groen. De woonkamer staat in verbinding met de eetkamer die tevens als derde slaapkamer kan dienen. Vanuit deze kamer bereik je het balkon, gelegen op het zuiden, een perfecte plek om in alle rust van de zon te genieten.

Aan de voorzijde van de woning bevindt zich de dichte keuken, met voldoende ruimte voor een goede keukenopstelling.

Aan de voorzijde zijn nog twee slaapkamers gelegen, beide met vaste kasten. 

De badkamer is eenvoudig uitgevoerd en voorzien van een douche en wastafel. Het separate toilet bevindt zich direct naast de badkamer.

Dankzij de functionele indeling en rechte wanden is deze woning een ideale basis om geheel naar eigen smaak te moderniseren.

Omgeving
Het appartement ligt op een centrale locatie met alle dagelijkse voorzieningen binnen handbereik. Voor je boodschappen kun je terecht bij de buurtwinkels in de directe omgeving, terwijl het uitgebreide winkelcentrum Osdorpplein op slechts vijf minuten fietsen ligt.

Dankzij de gunstige ligging zijn er uitstekende verbindingen met het openbaar vervoer. Tramlijnen 1 en 17 brengen je in korte tijd naar onder andere het centrum van Amsterdam, Station Lelylaan, Station Sloterdijk en Schiphol. Met de auto ben je bovendien binnen tien minuten op de A9, A5 of A10.

Langswater is gelegen in de groene en ruim opgezette Westelijke Tuinsteden, een buurt met een levendig karakter. 

VvE
De Vereniging van Eigenaars is actief met een maandelijkse VvE-bijdrage van thans € 278,27 per maand maar zal na omzetting verlaagd worden naar € 237,73 per maand. Het voorschot stookkosten bedraagt € 35,79.

Erfpacht
De woning staat op gemeentelijke erfpachtgrond. Er is een voortdurend recht van erfpacht van toepassing, het huidige tijdvak loopt tot 31 maart 2040, het recht wordt jaarlijks geïndexeerd per 1 oktober, de huidige canon bedraagt €70,84 per jaar

Bijzonderheden
- Woonoppervlakte ca. 72 m²;
- Bouwjaar ca. 1966;
- Ruim balkon op het zuiden;
- Royale bergruimte ca. 8m² in de onderbouw;
- Nabij buurtwinkels en winkelcentrum Osdorpplein;
- Goede verbindingen met openbaar vervoer;
- Drie ruime slaapkamers;
- Oplevering kan spoedig;
- Projectnotaris Actus Notarissen te Amsterdam;
- Aanvullende clausules zullen in de koopakte worden opgenomen.

Meetinstructie
Het verkochte is gemeten met gebruikmaking van de Meetinstructie, welke is gebaseerd op de normen zoals vastgelegd in NEN 2580. De Meetinstructie is bedoeld om een meer eenduidige manier van meten toe te passen voor het geven van een indicatie van de gebruiksoppervlakte. De Meetinstructie sluit verschillen in meetuitkomsten niet volledig uit door bijvoorbeeld interpretatieverschillen, afrondingen en beperkingen bij het uitvoeren van een meting. De woning is gemeten door een betrouwbaar professioneel bedrijf en koper vrijwaart de medewerkers van Voorma & Millenaar makelaars o.g. en de verkoper voor eventuele afwijkingen in de opgegeven maten. Koper verklaart in de gelegenheid te zijn gesteld om de het verkochte zelf te (laten) meten conform NEN 2580.

*** This Property is listed by an MVA Certified Expat Broker ***

Discover this spacious and 4-room apartment on the sixth floor of a complex with well-kept entrance, stairs and two elevators at Langswater. With a comfortable living area of approximately 72 m² and a lovely sunny south-facing balcony, this property offers an oasis of peace and space. The house needs to be modernized so it can be converted to your own taste. It also features a spacious storage room of approximately 8 m² in the basement of the complex.

Layout
Upon entering through the entrance you enter a central hallway which provides access to all rooms in the house. The bright and spacious living room is located at the rear overlooking greenery. The living room is connected to the dining room which can also serve as a third bedroom. From this room you reach the balcony, located on the south, a perfect place to enjoy the sun in peace.

At the front of the house is the closed kitchen, with enough space for a good kitchen layout.

At the front are two more bedrooms, both with closets. 

The bathroom is simple and equipped with a shower and sink. The separate toilet is located right next to the bathroom.

Thanks to the functional layout and straight walls, this house is an ideal base to modernize to your own taste.

Surroundings
The apartment is in a central location with all daily amenities within easy reach. For your shopping you can go to the local stores in the immediate vicinity, while the extensive Osdorpplein shopping center is just a five-minute bike ride away.

Thanks to its convenient location, there are excellent public transportation connections. Tramlines 1 and 17 take you in a short time to the center of Amsterdam, Lelylaan Station, Sloterdijk Station and Schiphol Airport, among others. By car, you are also within ten minutes on the A9, A5 or A10.

Langswater is located in the green and spacious Westelijke Tuinsteden, a neighborhood with a lively character. 

VvE
The Owners' Association is active with a monthly VvE contribution of currently € 278,27 per month but will be reduced to € 237,73 per month after conversion. The advance heating costs are € 35,79.

Leasehold
The house stands on municipal leasehold land. There is a perpetual right of leasehold applicable, the current period runs until March 31, 2040, the right is indexed annually on 1 October, the current canon is € 70,84 per year.

Details
- Living area approx 72 m²;
- Built in approx. 1966;
- Spacious balcony facing south;
- Spacious storage room approx 8 m² in the basement;
- Nearby stores and shopping Osdorpplein;
- Good connections to public transport;
- Three spacious bedrooms;
- Delivery soon;
- Project notary Actus Notaries in Amsterdam;
- Additional clauses will be included in the deed of sale.

Measuring instruction
The property has been measured using the Measuring Instruction, which is based on the standards laid down in NEN 2580. The Measuring instruction is intended to apply a more uniform way of measuring to give an indication of the usable area. The measurement instruction does not completely rule out differences in measurement results due to, for example, differences in interpretation, rounding off and limitations in carrying out a measurement. The property has been measured by a reliable professional company and the buyer indemnifies the employees of Voorma & Millenaar estate agents and the seller for any discrepancies in the stated measurements. The buyer declares to have been given the opportunity to measure the property himself in accordance with NEN 2580.
 

Plattegronden

Overdracht

Vraagprijs
€ 275.000 k.k.
Status
Verkocht
Aanvaarding
In overleg

Bouw

Object type
Galerijflat, appartement
Soort bouw
Bestaande bouw
Bouwjaar
1966
Soort dak
Plat dak

Oppervlakte en inhoud

Woonoppervlakte
72 m²
Inhoud
228 m³
Externe bergruimte
8 m²
Gebouwgeb. buitenruimte
8 m²

Indeling

Aantal kamers
4 kamers (3 slaapkamers)
Aantal badkamers
1 badkamer
Badkamervoorzieningen
Douche, wastafel
Aantal woonlagen
1 woonlaag
Voorzieningen
Lift

Energie

Energielabel
D
Energielabel registratie
04-12-2024
Isolatie
Dubbel glas
Verwarming
Stadsverwarming

Buitenruimte

Ligging
Aan rustige weg, in woonwijk, vrij uitzicht
Balkon / dakterras
Balkon
Tuin
Geen tuin

Bergruimte

Schuur / berging
Box

Garage

Soort garage
Geen garage

Parkeergelegenheid

Soort parkeergelegenheid
Betaald parkeren, parkeervergunningen

VvE checklist

Periodieke bijdrage
Ja

Energieverbruik in Amsterdam

Energielabel deze woning

Energielabel D

Publicatie energielabel: 04-12-2024

Stroomverbruik per jaar

1960 kWh

(Gemiddelde appartement in Amsterdam)

Gasverbruik per jaar

730 m³

(Gemiddelde appartement in Amsterdam)

* Cijfers zijn afkomstig van het CBS en bedoeld als indicatie en kunnen verschillen voor deze woning

Indicatie hypotheeklasten

Eigen inleg:
Spaargeld / overwaarde

Rente:
Laagste 10-jaars rente

Laagste 10-jaars rente

2,78% - Centraal Beheer - NHG


3,04% - Centraal Beheer - 80%

Laagste 20-jaars rente

3,29% - Centraal Beheer - NHG


3,52% - Centraal Beheer - 80%

Laagste 30-jaars rente

3,41% - Centraal Beheer - NHG


3,7% - Argenta - 80%


Hypotheek:

Bruto maandlasten: € 0 p/m

Netto maandlasten: € 0 p/m

Hoe berekenen we dit?

Het rentepercentage is gebaseerd op de laagste 10 jaars vaste rente voor één hypotheekdeel. De vermelde rente (2.78% met NHG) is gecontroleerd op 27-04-2026. Deze berekening is gebaseerd op een annuïteitenhypotheek die volledig wordt afgelost, waarbij de maandlasten gedurende de gehele looptijd gelijk blijven. De werkelijke rente en netto maandlasten kunnen variëren, afhankelijk van uw persoonlijke situatie en de hypotheekverstrekker. Raadpleeg een financieel adviseur voor een nauwkeurige berekening en advies. Aan deze berekening kunnen geen rechten worden ontleend; het dient enkel als indicatie.

Documentatie

Zonnegrenzen bekijken

Op de kaart

Inwoners in Amsterdam

Cijfers voor postcodegebied 1069

Totaal aantal inwoners
26350 inwoners
Mannen
49%
Vrouwen
51%

Inwoners in Amsterdam

Cijfers voor postcodegebied 1069

tot 15 jaar
20%
15 tot 25 jaar
13%
25 tot 35 jaar
32%
45 tot 65 jaar
22%
65 en ouder
13%

Huishoudens in Amsterdam

Cijfers voor postcodegebied 1069

Eenpersoons zonder kinderen
45%
Meerpersoons zonder kinderen
18%
Huishoudens zonder kinderen
63%

Huishoudens in Amsterdam

Cijfers voor postcodegebied 1069

Huishoudens met één kind
10%
Huishoudens met meerdere kinderen
26%
Huishoudens met kinderen
36%

Woningen in Amsterdam

Cijfers voor postcodegebied 1069

Woningen voor 1945
1%
Woningen tussen 1945 en 1965
19%
Woningen tussen 1965 en 1975
19%
Woningen tussen 1975 en 1985
4%
Woningen tussen 1985 en 1995
15%

Woningen in Amsterdam

Cijfers voor postcodegebied 1069

Woningen tussen 1995 en 2005
8%
Woningen tussen 2005 en 2015
32%
Woningen na 2015
1%
Huurwoningen
70%
Koopwoningen
30%

Overige in Amsterdam

Cijfers voor postcodegebied 1069

Gemiddelde WOZ waarde
€ 299.000,-
Personen onder de 65 met uitkering
11%

Overige in Amsterdam

Cijfers voor postcodegebied 1069

Adressen per km²
3977
Stedelijkheid (schaal 1 op 5)
100%
Postcode kaart 1069 Gemeente kaart amsterdam

Korte feiten over Amsterdam

Amsterdam is de hoofdstad van Nederland. De stad, in het Amsterdams ook Mokum genoemd (afkomstig uit het Jiddisch), ligt in de provincie Noord-Holland, aan het IJ, het Noordzeekanaal en de monding van de Amstel. De stad ligt in de gelijknamige gemeente Amsterdam en heeft 873.338 inwoners (1 januari 2021), Groot-Amsterdam telt 1.459.402 inwoners.

Voorma & Millenaar makelaars

Indien u vragen heeft of u wilt een bezichtiging inplannen, dan kunt u gebruik maken van het formulier hiernaast. Er zal daarna op korte termijn contact met u worden opgenomen.

Amsterdamseweg 176

1182 HL, Amstelveen

020 - 641 8694 amsterdam@voormamillenaar.nl www.voormamillenaar.nl

Wie is Voorma & Millenaar?

Voorma & Millenaar makelaars, opgericht in 1966, is al geruime tijd een vertrouwde naam in de Amstelveense woningmarkt. Ons toegankelijke kantoor is gevestigd aan de Amsterdamseweg in Amstelveen en wordt ondersteund door een enthousiast en proactief team dat altijd voor u klaarstaat.

Onze expertise ligt in het adviseren en bemiddelen op de Amstelveense woningmarkt, evenals in de omliggende gemeenten. Bij Voorma & Millenaar staat het leveren van uitstekende service centraal, waarbij we de belangen van onze klanten vooropstellen.

Ons hele team, gevestigd aan de Amsterdamseweg, staat voor u klaar! Het bestaat uit gedreven professionals die alles op alles zetten om de beste resultaten te behalen. Dankzij deze toewijding onderscheiden we ons al jaren met ongeëvenaarde resultaten en service.

Wie is Voorma & Millenaar?

Nieuwste reviews

Reviews Voorma & Millenaar makelaars

Langswater 586, Amsterdam

€ 275.000 k.k. - Verkocht

Helaas, deze woning is verkocht!

Net te laat, deze woning is al verkocht. Laat een zoekopdracht bij ons achter zodat wij u direct kunnen helpen wanneer er nieuw aanbod beschikbaar komt.